西雅圖房產1715 20th Ave #5
http://dailynews.sina.com 2021年05月05日 09:50 北京新浪網
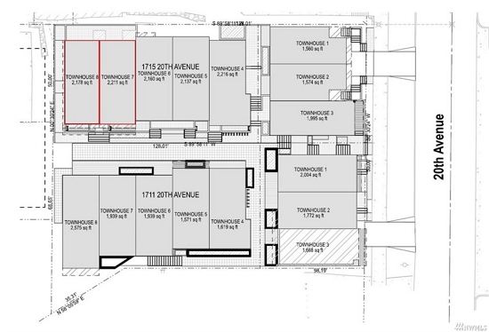
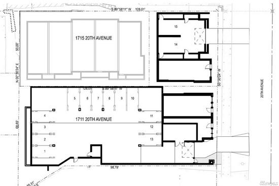
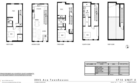
地址/Address: 1715 20th Ave #5, Seattle, WA 98122
價錢/Price: $1,385,000美元
描述Highlights:
在國會山的中心:高質量的磚石結構,帶EV插件的安全地下停車場,升級的機櫃,油漆,管道,加利福尼亞壁櫥,豪華電器,Coeur D'alene窗戶,優質的空氣過濾系統。 所有房屋都有自己的屋頂平臺,維護費用低Kebony可持續發展的木材可延年益壽,有些則享有Mt. Rainer View和/或一個單獨的可租用伸縮室。目標是LEED金獎。










|
建築時間Year Built: |
2021 |
|
上市時間 MLS/ Listing Number |
MLS#: 1745611 |
|
樓層總數Stories: |
|
|
臥室數Beds: |
4 |
|
洗漱間Baths: |
2.75 |
|
配套設施 Property Type |
|
|
房產稅Tax(上一年Last year) |
|
|
佔地面積Lot size: |
|
|
套內面積Square Footage: |
2137 |
美國諮詢熱線
Agent Name :Jennifer Wu
手機Mobile/微信 WeChat ID:
公司美國總部地址 Company name -address:exp Realty
2815 Elliott Ave Ste. 100
Seattle, WA 98121
- 【關閉】







