2 英亩可用土地上, 建筑计划已获批准, 位于黄金地段
http://dailynews.sina.com 2022年01月04日 14:34 北京新浪网
地址/ Address: 28 Rolling Hill Rd, Old Westbury, NY 11568
价钱/ Price $4,375,000 美元
描述Highlights:
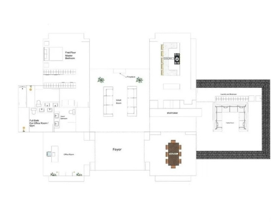
神话般的现代和开放式设计, 位于黄金地段的高海拔的 2 英亩可用土地上。 基础、框架、屋顶、Pella 窗户、基楚管道和电气已完成。 哈迪木板外观。 建筑计划已获批准并可用。 带上您自己的建筑商来定制室内装饰,让它成为您梦想中的家园! 独一无二的机会!





建筑时间Year Built: |
2021 |
上市时间 MLS/ Listing Number |
|
楼层总数Stories: |
2 楼 |
卧室数Beds: |
6 |
洗漱间Baths: |
7 |
配套设施 Property Type |
独栋别墅 |
房产税Tax(上一年Last year) |
地税:$ 校税:$ |
占地面积Lot size: |
|
套内面积Square Footage: |
7000 sf2 650 pi2 |
联系方式Contact Info:
咨询热线 Tel: 646-891-6980
Agent Name :Katie Kao 高国华


邮箱 Email: katierealty888@gmail.com 或 abc6311ny@gmail.com
个人网站 Website: kuohwakao@exprealty.com
微信 WeChat ID:
Company name -address:
Exp Realty Inc。
70 E Sunrise Hwy, Ste 500, Valley Stream, NY 11581
- 【关闭】